一戸建 西滝三丁目Ⅱ 新築デザイナーズ住宅
情報更新日:2026-04-14
| 所在地 | 間取 | 価格 | 建物延面積 | 敷地面積 |
|---|---|---|---|---|
| 青森県 青森市 西滝三丁目【新築】 | 3LDK | 2,575万円 | 80.16㎡ | 126.02㎡ (公簿) |
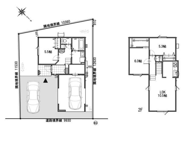
新築 3LDK P3台可 ‼️パノラマは備考より‼️
360°パノラマで見る
本物件の内容や画像等は全て現況優先とさせていただきます。各画像は参考図となります。
| 交通機関 | バス 三内稲元バス停徒歩3分 | ||
|---|---|---|---|
| 学区 | 三内小学校(0.78km)・三内中学校(1.18km) | ||
| 詳細間取 | 3LDK (1階:洋5.5帖×1、2階:洋6帖×1、2階:洋5.3帖×1、2階:LDK13.5帖) | ||
| 周辺施設 | |||
| その他費用 | 水道加入金:132,000円、住宅瑕疵担保責任保険:55,000円 | ||
| 総戸数 | 建物構造 | その他 (2×4) | |
| 築年月 | 令和7年12月 | 主要採光方向 | 南 |
| 駐車場 | 敷地内 可 | 地勢 | 平坦 |
| 駐車場複数台 | 可2台まで | 土地権利 | 所有権 |
| 用途地域 | 第一種低層住居専用 | 国土法届 | 不要 |
| 取引態様 | 仲介 | 現況 | 空家 |
| 引渡 | 即可 | 建ぺい率/容積率 | 50% / 80% |
| 地目 | 宅地 | 都市計画 | 市街化 |
| セットバック | 無 | 接道状況 | 一方(公道・北東側・間口9.93m・幅員6.6m) |
| 私道負担 | ─ / ─ | 建築確認番号 | 第0026号 |
| 法令上の制限 | 建築基準法22条区域 景観計画区域 |
||
| 設備 | バス(有 シャワー有 追焚機能付 給湯式) トイレ(洋式 独立 水洗 暖房便座 洗浄機能付) 上水道設備(公営) 下水道設備 給湯(ガス) 洗面化粧台(独立)(シャワー付) LPガス ガスコンロ(3口) TV付インターホン エアコン 下駄箱 洗濯機置場 システムキッチン 物置 ウォークインクローゼット 網戸 カーテンレール 照明器具 TVアンテナ 車庫 フローリング クローゼット 郵便受 デザイナーズ 電気自動車充電設備 省エネガス給湯ボイラー「エコジョーズ」 食器洗乾燥機付 | ||
| 備考 |
・設計住宅性能評価書取得済住宅となります! ・駐車スペース3台分、外構コンクリート仕上げ ・省エネガス給湯ボイラー「エコジョーズ」メンテナンス保証付き ・ユニットバス追い炊き機能付き ・食器洗乾燥機付き ・1Fホールに冷暖房エアコン1台付き ・地デジ対応TVアンテナ付き。 ・省令準耐火構造『2×4工法』 ・引渡時品質2年保証 ・住宅瑕疵担保責任保険10年保証 ・一部住宅設備10年保証(システムキッチン・システムバス・洗面化粧台・温水暖房便座・給湯器・24時間換気システム) ・地盤調査済&1引渡し日から0間年保証 ・べた基礎工法採用(底部分も基礎に) ・基礎断熱工法採用 ・フラット35S対応住宅 ・住宅ローン控除対象住宅 ‼️パノラマはこちら‼️ ※同業他社による客付け不可 |
||
| 取扱業者 |
(株)ハウスバンク 青森県知事免許(6)第2933号 青森県青森市花園2丁目25-1 TEL:017-765-3601 FAX:017-765-3602 (公社)青森県宅地建物取引業協会会員 東北地区不動産公正取引協議会加盟事業者 |
||
























